x                
           
                     
           


BAUPLANUNG    BAUBETREUUNG        
 
 

  x  
 

2-geschossige Produktionshalle  Bäckerei Richter   

 
     
     
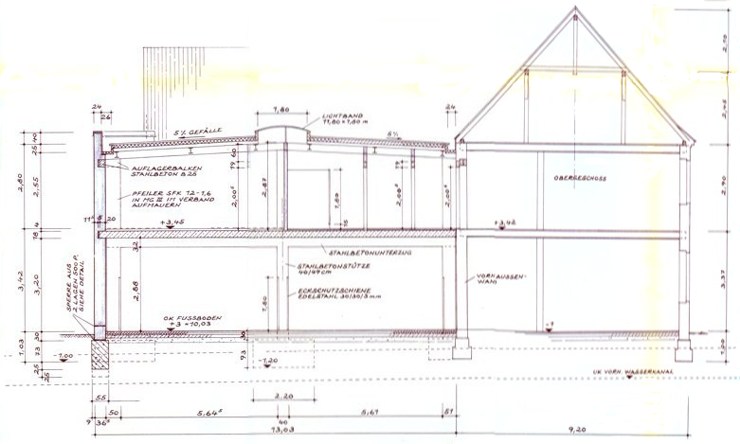
  Querschnitt der 2-geschossigen ProduktionsHalle  
 
 
 
     
     
 
 
     
 
ObjektBezeichnung:  2-geschossige Produktionshalle Bäckerei Richter
Auftrags-Nr.:  
92-02
Bauherrschaft: 
Bäcker Richter
übernommene LeistungsPhasen nach HOAI:  
LP 1 - 8   + Statik
 
     
 
 
     
  Objekt-Feuilleton  
     
  PlanungsKonzeption

das gesamte vordere Hof-Grundstück bis zu den FlurstücksGrenzen wurde mit dieser 2-geschossigen. nicht unterkellerten  ProduktionsHalle überbaut
Dazu wurden auf dem NachbarGrundstück AbstandsFlächen grundbuchrechtlich übernommen.

zur BauKonstruktion in Kurzform:
- das TragSystem besteht aus vor-Ort betonierten Stützen, Unterzügen und Decken
- die DachKonstruktion besteht aus einem ProfilStahl-Tragrost mit Profilblech-Abdeckung in 2 Lagen mit zwischenliegender DämmSchicht
- AußenWände sind aus 36,5cm WD-Ziegeln
- die direkt auf der FlurstücksGrenze verlaufende AW mußte damit als  F90 Brandwand geplant werden,

 
     
     
  mit Google Earth dieses Objekt aus der Luft betrachten
haben Sie Google Earth installiert, dann kopieren Sie für dieses Objekt in die AdressZeile ein: 
       
Dresden, Bautzner Landstrasse 150
 
     
     
  eine Nachbetrachtung

seitens der Bauherschaft war hier ein "Manager" der Bäko-Zentrale West eingeschaltet worden, der erst nach der Wende hier in Sachsen auftauchte.
Nie wieder möchte ich mit einem derartigen Menschen zusammen-arbeiten müssen  bzw werde ich es tun, wobei ich mich über Verträge immer noch ganz gut abgesichert hatte.

dieses Objekt war ein reiner Zweckbau;  - HonorarProbleme und anderer  HickHack  sind die Themen, die mir hauptsächlich in Erinnerung geblieben sind.
Ein Beispiel wäre:   ein ohne unsere Mitwirkung beauftragter BauBetrieb (der GeschäftsFührer war in-etwa der gleiche Typ Mensch wie der "Manager"  - und mir von daher schon unsymphatisch),  der vorangegangene grundsätzliche Abstimmungen zur DachKonstruktion einfach von sich aus ändert  und dann plötzlich grosse Probleme bekommt weil vorgesehene bestellte DachOberlichter nicht mehr passen  etc  etc 

trotzdem, von uns aus ist komplett alles gekommen, damit letztlich ein funktionsfähiges Bauwerk entstanden ist, mit dem der Bauherr seitdem gutes Geld verdient.