| |
x |
|
| |
Neubau
EH Fam. Steinke |
|
| |
|
|
| |
Blick zum EH-Neubau im HinterGrundstück Baufeld-Foto vor BauBeginn
rechtsseitig ist der 3m breite ZufahrtsWeg mit der TorEinfahrt (noch im BauZustand) direkt-parallel zur GrundstücksGrenze
linksseitig erkennt man im VorderGrundstück das bestehende WochenendHaus zur Orientierung: die FinnHütte ist in-etwa dort, wo sich heute die AußenTerasse über der TiefGarage befindet
Blick zum EH-Neubau im HinterGrundstück
rechtsseitig ist der 3m breite ZufahrtsWeg mit der TorEinfahrt (noch im BauZustand) direkt-parallel zur GrundstücksGrenze
linksseitig erkennt man im VorderGrundstück das bestehende WochenendHaus
|
|
| |
|
|
| |
|
|
| |
|
|
| |
|
ObjektBezeichnung:
Neubau EH Fam. Steinke |
Auftrags-Nr.:
93-28 |
Bauherrschaft:
Fam. Steinke |
übernommene LeistungsPhasen nach HOAI:
LP
1 - 8 + Statik |
|
|
| |
|
|
| |
|
|
| |
|
|
| |
Objekt-Feuilleton |
|
| |
|
|
| |
PlanungsKonzeption
das
Baugrundstück war ein langes "schmales Handtuch" auf leicht ansteigendem
Gelände im vorderen Bereich bebaut mit einem WochenendHaus. Es wurde für
den EH-bau
grundbuch-rechtlich geteilt um auf dem HinterGrundstück das neue EH zu
bauen.
das war unser
erstes EH im NachwendeZeitraum - ein Massivbau aber nur teil-unterkellert;
/eine Lehre aus diesem Objekt > ein EH sollte immer komplett
unterkellert werden, wenn das finanzielle Budget knapp wird, die
Bauherrschaft meint den Raum momentan nicht zu benötigen etc, dann verbleibt
ein Teil des KG-Bereiches eben vorerst nur im Rohbau
|
|
| |
|
|
| |
|
|
| |
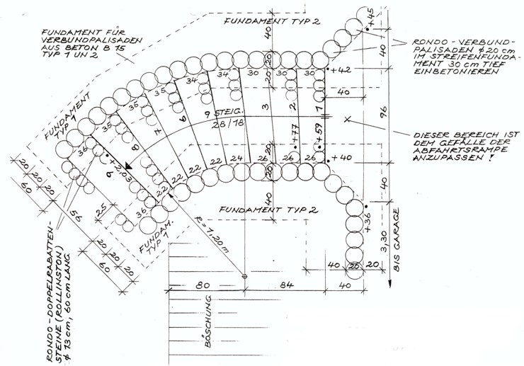
SonderProblem Zufahrtsweg
der
lange Zufahrtsweg zum Gebäude und weiter am Gebäude vorbei bis zur
rückseitig unter der Terasse angeordneten TiefGarage was ein
besonderes Problem
der notwendige
GeländeEinschnitt unmittelbar entlang der GrundstücksGrenze mußte mit
Stütz-Mauern abgefangen werden wie der LageplanAusschnitt zeigt. Wir
haben dazu verschiedene Varianten untersucht (u.a. auch eine
monlithische Stützmauer aus SB durch-geplant und dazu ein KostenAngebot
eingeholt) uns dann aber letztlich für Fertigteil-Palisaden aus
SB (RONDO-VerbundPalisaden) entschieden. |
|
| |
|
|
| |
der Lageplan zur Anordnung der
RONDO-VerbundPalisaden |
|
| |
|
|
| |
|
|
| |
Detail-Zchng der TreppenAnlage aus
RONDO-VerbundPalisaden |
|
| |
|
|
| |
|
|
| |
|
|
| |
|
|
| |
|
|
| |
|
|