|
|
x |
|
| |
|
Reko DHH
Fam. Wiesmann |
|
|
|
|
|
|
|
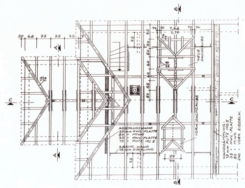
DachBereich - LängsSchnitt DachBereich - QuerSchnitt Hof-Fassade mit neuem EingangsBauwerk
man erkent an drei Stellen im DeckenBereich die eingeschobenen HEM-Träger um die Lasten der DachStützen (HolzSäulen) aufzunehmen. hier sieht man im Detail die Anordnung der HEM-Träger, zwischen den ursprünglich-vorhandenen HolzBalken der Decke über dem OG die rechtsseitige DHH ist das betreffende RekoObjekt
|
|
|
|
|
|
| |
|
|
|
|
|
|
|
| |
|
|
ObjektBezeichnung:
Reko DHH Fam. Wiesmann |
Auftrags-Nr.:
93-21 |
Bauherrschaft:
Fam. Wiesmann |
übernommene LeistungsPhasen nach HOAI:
LP
1 - 8 + Statik |
|
|
|
|
|
|
| |
|
|
|
|
|
|
|
| |
|
Objekt-Feuilleton |
|
|
|
|
|
|
|
PlanungsKonzeption
seitens
der Bauherrschaft war der DachgeschoßAusbau zu Wohnzwecken gewünscht. Dazu
mußte die bisherige oberste Geschoßdecke (Decke über OG) statisch verstärkt werden.
Die Baumaßnahmen waren bei AufrechtErhaltung der WohnNutzung durchzuführen.
Wir haben dazu von außen / strassenseitig mehrere
HT-StahlTräger in das Gebäde durch AW-Öffnungen eingeschoben und sie
dann jeweils auf den beiden Außenwänden aufgelegt.
weiterhin:
die Fassade wurde mit WDVS versehen, neue Fenster + AußenTur
eingebaut, neue Dachdeckung und hofseitig wurde ein
geschlossenes EingangsBauwerk vor die Fassade gesetzt. |
|
|
|
|
|
|
|
|
|
| |
|
Probleme
+
Negativ aufgefallen
ein Thema über das
normalerweise nicht geredet wird; - an diesem Objekt habe ich zuweilen
die GewissensKonlikte gehabt, die entstehen, wenn man als PlanungsBüro
den Auftrag über den BauBetrieb erhält und zum anderen für die
Bauherrschaft treuhänderisch tätig sein möchte bzw muß.
die
von der Bauherrschaft während eines MesseBesuches gefundene Fensterbau-Firma
war für mich der Prototyp einer un-qualifizierten BauFirma. Ich ringe
noch mit mir, hier den Namen zu veröffentlichen /ich würde es wohl auch tun,
wenn ich nicht mit der gegenwärtigen Gerichtsbarkeit schon so meine
Erfahrungen gemacht hätte. |
|
|
|
|
|
|
|
|
|
|
|
|
|
| |
|
|
|